Villa Via Grotte Partanna ASTA 13/11/2025

645.285 €
195 m²
Superficie
4
Bagni
in vendita
villa
Palermo
Descrizione
EUROASTA Specialisti ASTE e MUTUI fino al 100% del prezzo di aggiudicazione

Richiedi Gratuitamente:
Una consulenza Asta e il Voucher Approvazione Mutuo fino al 100%

Contattaci o invia un messaggio WhatsApp con scritto Info Asta al n. Cell. 351/7007492

Iscritti ALBO OAM

Assistenza Presentazione dell'offerta telematica o cartacea
(deposito offerta telematica, rilascio firma digitale e PEC)

Assistenza completa per tutto l'iter pre e post Aggiudicazione

Voucher Mutuo in asta richiedibile direttamente in sede fino al 100% del prezzo di Aggiudicazione

EUROASTA LEADER IN ITALIA
Specialisti ASTE Immobiliari con Mutuo fino al 100%
Sede Palermo in Via Roma 471
Fronte Grand HOTEL Palme.
Cell. 351/ 700 7492
Mail./info@euroasta.it
sito /--°www.euroasta.it

Contattaci per ricevere assistenza le informazioni, foto e la perizia e prenotare la visita

DATA ASTA - 13/11/2025

PREZZO OFFERTA BASE - 645.285,00€

RILANCIO MINIMO - 20.000,00€

TIPOLOGIA ASTA - Senza Incanto Sincrona Mista

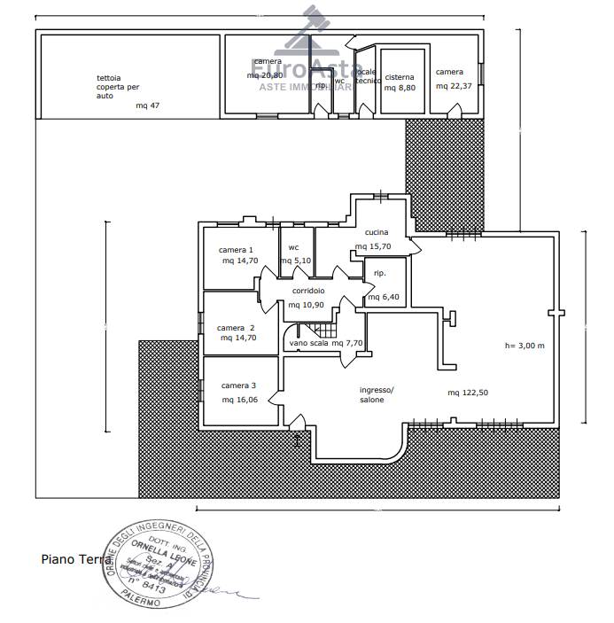
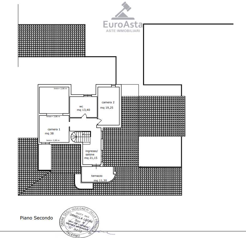
Quota di 1/1 di intera proprietà di Villa unifamiliare ubicata in Palermo, località Pizzo Sella di Monte Gallo, Via Grotte Partanna n. 5, interno 3, composta allo stato attuale da 16 vani, 4 servizi igienici, ripostiglio, lavanderia, ampi corridoi, disposta su 3 piani con ampi terrazzi. Dotata di posto auto coperto e locali tecnici. Confina a Nord/Est con Monte Gallo, a sud con foglio 1 part 1587. L’accesso all’immobile avviene da Via Grotte Partanna n. 5 e fa parte di un complesso residenziale denominato “Gli Aquiloni”.Identificato in Catasto Fabbricati del Comune di Palermo al foglio 1, particella 1374 sub 59 e particella 1443 graffate, zona censuaria 5, categoria A/7, classe 8, consistenza 10 vani, superficie catastale totale 195 mq., escluse aree scoperte 185 mq., rendita € 1.110,38, Via Grotte Partanna n. 5, piano S1 – T - 1.

EUROASTA LEADER IN ITALIA
Sede Palermo EUROASTA Lo Studio offre i seguenti servizi:

• Assistenza domanda di partecipazione Telematica o Cartacea
• Deposito offerta telematica, rilascio firma digitale e PEC)
• Approfondimento sulle tematiche giuridiche riguardanti le modalità di acquisto
• Esame della perizia e di ogni altro documento accessorio;
• Voucher Mutuo Fattibilità per l'erogazione del mutuo (anche 100%) tramite primari istituti bancari;
• Richiesta e prenotazione della visita dell'immobile tramite custode giudiziario delegato;
• Consulenza e assistenza anche in via telematica da remoto in tutta ITALIA;
• Partecipazione in asta in nome e nell'interesse del cliente. Assistenza totale Pre e Post Aggiudicazione.
• Consulenza MUTUO Gratuita in sede

EUROASTA LEADER IN ITALIA
Specialisti ASTE Immobiliari con Mutuo fino al 100%
Sede Palermo in Via Roma 471
Fronte Grand HOTEL Palme.
Cell. 351/ 700 7492
Mail./.info@euroasta.it
Sito./.www.euroasta.it


Trattasi di acquisto tramite vendita giudiziaria da parte del Tribunale competente con assistenza della EURO ASTA Immobiliari, studio di consulenza legale Creditizia leader in materia di esecuzioni immobiliari ed aste giudiziarie.
Si precisa che trattasi di vendita pubblica alla quale si può partecipare personalmente o tramite Avvocato.
Caratteristiche principali
Codice:
V000681
Città:
Palermo
Categoria:
Villa
Locali:
16
Bagni:
4
Mq:
195
Posti auto:
2
Piano:
Terra
Anno:
1970
Classe energetica:
G
Stato Immobile:
Abitabile
Grado:
Signorile
Posizione:
Collina
Panorama:
Vista Mare
Lati Liberi:
4
Giardino:
Privato
Arredi:
Non Arredato
Tipo Soggiorno:
Soggiorno
Tipo Cucina:
Abitabile
Riscaldamento:
Autonomo
Mappa
Via Grotte Partanna , 5 - Palermo (PA)
Richiedi informazioni
Cookie preference
Contattaci su WhatsApp