Appartamento Via A. Pacinotti ASTA 20/11/2025

230.250 €
212,6 m²
Superficie
3
Camere
2
Bagni
in vendita
appartamento
Palermo
Descrizione
EUROASTA Specialisti ASTE e MUTUI fino al 100% del prezzo di aggiudicazione

Richiedi Gratuitamente:
Una consulenza Asta e il Voucher Approvazione Mutuo fino al 100%

Contattaci o invia un messaggio WhatsApp con scritto Info Asta al n. Cell. 351/7007492

Iscritti ALBO OAM

Assistenza Presentazione dell'offerta telematica o cartacea
(deposito offerta telematica, rilascio firma digitale e PEC)

Assistenza completa per tutto l'iter pre e post Aggiudicazione

Voucher Mutuo in asta richiedibile direttamente in sede fino al 100% del prezzo di Aggiudicazione

EUROASTA LEADER IN ITALIA
Specialisti ASTE Immobiliari con Mutuo fino al 100%
Sede Palermo in Via Roma 471
Fronte Grand HOTEL Palme.
Cell. 351/ 700 7492
Mail./info@euroasta.it
sito /--°www.euroasta.it

Contattaci per ricevere assistenza le informazioni, foto e la perizia e prenotare la visita

DATA ASTA - 20/11/2025

PREZZO OFFERTA BASE - 230.250,00€

RILANCIO MINIMO - 5.000,00€

TIPOLOGIA ASTA - Senza Incanto Sincrona Mista

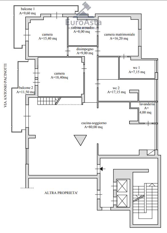
Piena proprietà dell'appartamento sito in Palermo, via Antonio Pacinotti n. 94, scala A, piano decimo. L’appartamento è ubicato al piano decimo, a destra salendo la scala A, interno 19 e si compone di cucina-soggiorno, servizio igienico, locale lavanderia, camera matrimoniale con annesso servizio igienico e locale cabina armadio, due camere e due balconi .
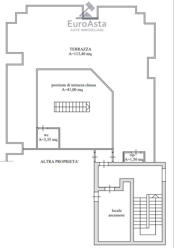
All’interno dell’ambiente soggiorno è collocata una scala che collega l’appartamento con la soprastante terrazza, che si presenta in parte chiusa a veranda con infissi in alluminio e vetro; all’interno della veranda è stata ricavata una zona cucina e realizzato, con struttura muraria, un servizio igienico; è stato inoltre realizzato un locale ripostiglio esterno alla struttura. Alla detta terrazza si ha accesso anche mediante la scala condominiale

EUROASTA LEADER IN ITALIA
Sede Palermo EUROASTA Lo Studio offre i seguenti servizi:

• Assistenza domanda di partecipazione Telematica o Cartacea
• Deposito offerta telematica, rilascio firma digitale e PEC)
• Approfondimento sulle tematiche giuridiche riguardanti le modalità di acquisto
• Esame della perizia e di ogni altro documento accessorio;
• Voucher Mutuo Fattibilità per l'erogazione del mutuo (anche 100%) tramite primari istituti bancari;
• Richiesta e prenotazione della visita dell'immobile tramite custode giudiziario delegato;
• Consulenza e assistenza anche in via telematica da remoto in tutta ITALIA;
• Partecipazione in asta in nome e nell'interesse del cliente. Assistenza totale Pre e Post Aggiudicazione.
• Consulenza MUTUO Gratuita in sede

EUROASTA LEADER IN ITALIA
Specialisti ASTE Immobiliari con Mutuo fino al 100%
Sede Palermo in Via Roma 471
Fronte Grand HOTEL Palme.
Cell. 351/ 700 7492
Mail./.info@euroasta.it
Sito./.www.euroasta.it


Trattasi di acquisto tramite vendita giudiziaria da parte del Tribunale competente con assistenza della EURO ASTA Immobiliari, studio di consulenza legale Creditizia leader in materia di esecuzioni immobiliari ed aste giudiziarie.
Si precisa che trattasi di vendita pubblica alla quale si può partecipare personalmente o tramite Avvocato.
Caratteristiche principali
Codice:
V000680
Città:
Palermo
Categoria:
Appartamento
Locali:
5
Camere:
3
Bagni:
2
Mq:
212,6
Balconi:
2
Mq Balcone:
22,6
Terrazzi:
1
mq Terrazzo:
115
Piano:
10
Anno:
1970
Classe energetica:
G
Stato Immobile:
Buono
Grado:
Medio
Posizione:
Periferia
Panorama:
Vista Aperta
Lati Liberi:
3
Giardino:
No
Arredi:
Non Arredato
Tipo Soggiorno:
Sala da Pranzo
Tipo Cucina:
Abitabile
Riscaldamento:
No
Tipo Riscaldam.:
Caldaia
Accessori
Ascensore
Ripostiglio
Veranda
Mappa
Via Antonio Pacinotti, 94 - Palermo (PA)
Richiedi informazioni
Cookie preference
Contattaci su WhatsApp