Appartamento Via dei Redentoristi ASTA 07/11/2025

135.289 €
175 m²
Superficie
in vendita
appartamento
Palermo
Descrizione
EUROASTA Specialisti ASTE e MUTUI fino al 100% del prezzo di aggiudicazione

Richiedi Gratuitamente:
Una consulenza Asta e il Voucher Approvazione Mutuo fino al 100%

Contattaci o invia un messaggio WhatsApp con scritto Info Asta al n. Cell. 351/7007492

Iscritti ALBO OAM

Assistenza Presentazione dell'offerta telematica o cartacea
(deposito offerta telematica, rilascio firma digitale e PEC)

Assistenza completa per tutto l'iter pre e post Aggiudicazione

Voucher Mutuo in asta richiedibile direttamente in sede fino al 100% del prezzo di Aggiudicazione

EUROASTA LEADER IN ITALIA
Specialisti ASTE Immobiliari con Mutuo fino al 100%
Sede Palermo in Via Roma 471
Fronte Grand HOTEL Palme.
Cell. 351/ 700 7492
Mail./info@euroasta.it
sito /--°www.euroasta.it

Contattaci per ricevere assistenza le informazioni, foto e la perizia e prenotare la visita

DATA ASTA - 07/11/2025

PREZZO OFFERTA BASE - 135.289,00€

RILANCIO MINIMO - 4.000,00€

TIPOLOGIA ASTA - Senza Incanto Sincrona Mista

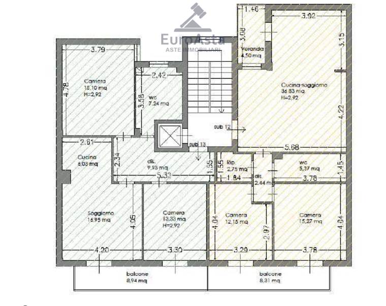
Piena proprietà di immobile facente parte di un edificio sito in Palermo, Via dei
Redentoristi n. 19, piano quinto, già identificato in Catasto Fabbricati di detto Comune
al foglio 41, particella 1058 sub. 7. Successivamente il sub. 7 è stato soppresso e,
pertanto, a seguito di variazione del 23/04/2012, ha generato due appartamenti così
identificati:
- foglio 41, particella 1018 sub. 12, zona censuaria 2, categoria A/2, classe 6,
consistenza 5 vani, superficie catastale totale 93 mq., totale escluse aree scoperte 90
mq., rendita € 322,79, Via dei Redentoristi n. 19, interno SX, piano 5.
Confinante a nord-nord-ovest con la Via dei Redentoristi, a nord con il sub 13 e il vano
scala condominiale, a est con chiostrina condominiale;
- foglio 41, particella 1018 sub. 13, zona censuaria 2, categoria A/2, classe 6,
consistenza 4 vani, superficie catastale totale 82 mq., totale escluse aree scoperte 79
mq., rendita € 258,23, Via dei Redentoristi n. 19, interno DX, piano 5.
Confinante a nord-nord-ovest con la Via dei Redentoristi, a nord con la p.lla 1674, a
sud-est con il sub 12 e scala condominiale.

EUROASTA LEADER IN ITALIA
Sede Palermo EUROASTA Lo Studio offre i seguenti servizi:

• Assistenza domanda di partecipazione Telematica o Cartacea
• Deposito offerta telematica, rilascio firma digitale e PEC)
• Approfondimento sulle tematiche giuridiche riguardanti le modalità di acquisto
• Esame della perizia e di ogni altro documento accessorio;
• Voucher Mutuo Fattibilità per l'erogazione del mutuo (anche 100%) tramite primari istituti bancari;
• Richiesta e prenotazione della visita dell'immobile tramite custode giudiziario delegato;
• Consulenza e assistenza anche in via telematica da remoto in tutta ITALIA;
• Partecipazione in asta in nome e nell'interesse del cliente. Assistenza totale Pre e Post Aggiudicazione.
• Consulenza MUTUO Gratuita in sede

EUROASTA LEADER IN ITALIA
Specialisti ASTE Immobiliari con Mutuo fino al 100%
Sede Palermo in Via Roma 471
Fronte Grand HOTEL Palme.
Cell. 351/ 700 7492
Mail./.info@euroasta.it
Sito./.www.euroasta.it


Trattasi di acquisto tramite vendita giudiziaria da parte del Tribunale competente con assistenza della EURO ASTA Immobiliari, studio di consulenza legale Creditizia leader in materia di esecuzioni immobiliari ed aste giudiziarie.
Si precisa che trattasi di vendita pubblica alla quale si può partecipare personalmente o tramite Avvocato.
Caratteristiche principali
Codice:
V000678
Città:
Palermo
Categoria:
Appartamento
Locali:
5
Mq:
175
Anno:
1970
Classe energetica:
G
Stato Immobile:
Abitabile
Grado:
Medio
Posizione:
Periferia
Panorama:
Vista Aperta
Lati Liberi:
3
Giardino:
No
Arredi:
Non Arredato
Tipo Soggiorno:
Soggiorno
Tipo Cucina:
Abitabile
Riscaldamento:
No
Accessori
Ascensore
Ripostiglio
Mappa
Via dei Redentoristi, 19 - Palermo (PA)
Richiedi informazioni
Cookie preference
Contattaci su WhatsApp