Villa Via Granada ASTA 18/12/2025

76.950 €
225 m²
Superficie
in vendita
villa
Carini
Descrizione
EUROASTA Specialisti ASTE e MUTUI fino al 100% del prezzo di aggiudicazione

Richiedi Gratuitamente:
Una consulenza Asta e il Voucher Approvazione Mutuo fino al 100%

Contattaci o invia un messaggio WhatsApp con scritto Info Asta al n. Cell. 351/7007492

Iscritti ALBO OAM

Assistenza Presentazione dell'offerta telematica o cartacea
(deposito offerta telematica, rilascio firma digitale e PEC)

Assistenza completa per tutto l'iter pre e post Aggiudicazione

Voucher Mutuo in asta richiedibile direttamente in sede fino al 100% del prezzo di Aggiudicazione

EUROASTA LEADER IN ITALIA
Specialisti ASTE Immobiliari con Mutuo fino al 100%
Sede Palermo in Via Roma 471
Fronte Grand HOTEL Palme.
Cell. 351/ 700 7492
Mail./info@euroasta.it
sito /--°www.euroasta.it

Contattaci per ricevere assistenza le informazioni, foto e la perizia e prenotare la visita

DATA ASTA - 18/12/2025

PREZZO OFFERTA BASE - 76.950,00€

RILANCIO MINIMO - 3.000,00€

TIPOLOGIA ASTA - Senza Incanto Sincrona Mista

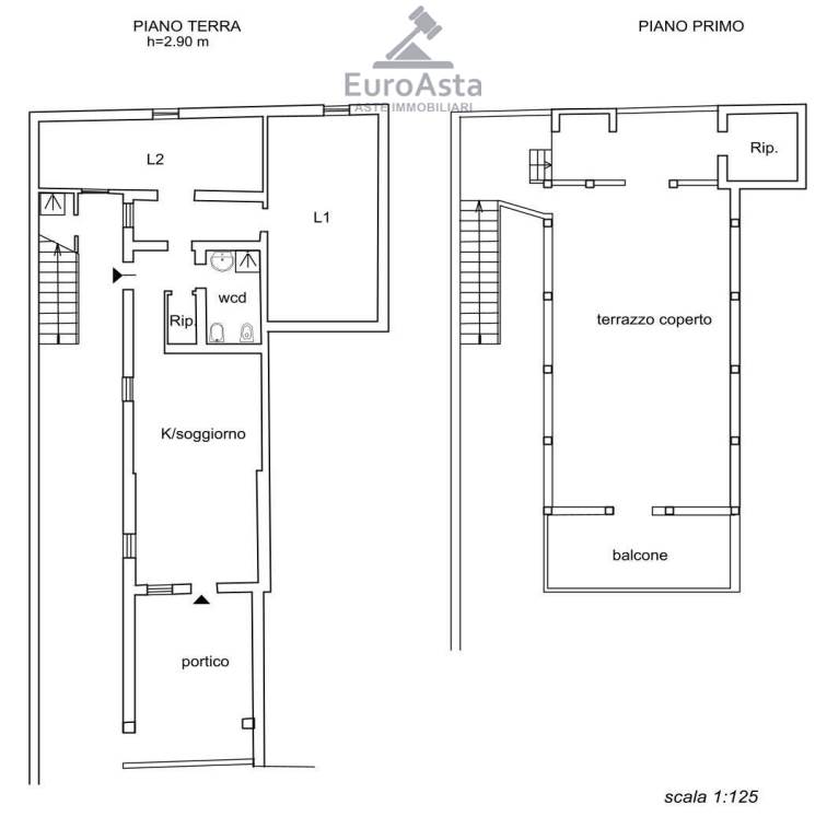
Piena proprietà del villino unifamiliare ad una elevazione fuori terra sito in Carini via Granada n.16, composto da soggiorno/cucina, wc doccia, 2 camere, ripostiglio, due disimpegni, portico su prospetto principale, scala esterna in muratura che conduce alla copertura praticabile munita di tettoia in legno e tegole oltre terreno di pertinenza antistante. È presente al piano superiore anche un vano ripostiglio. Il villino è interamente recintato e presenta un cancello carrabile sulla via Granada, l’area esterna antistante è costituita dalle particelle riportate nel Catasto terreni al fg.11 p.lla 2506,2508 e 2510 di complessivi 225 mq. In particolare, sulla p.lla 2510 è stato costituito vincolo a parcheggio a servizio dell’immobile per un’area di 36 mq. Il lotto sul quale insiste il villino è esteso complessivamente 384 mq, la superficie coperta del fabbricato è pari a mq 107.L’intero villino confina ad est con via Granada, a sud con p.lla 945, a nord con p.lla 2591 e p.lla 127 sub 13, ad ovest con p.lla 124.L’immobile è attualmente censito al Catasto Fabbricati del Comune di Carini al fg. Foglio 11, p.lla 127, sub 11 graffata 12 e terreno ad uso esclusivo al Catasto al fg. 11, p.lla 2506, p.lla 2508, e p.lla 2510. L’immobile è stato edificato in assenza di provvedimenti autorizzativi successivamente sono state presentate tre distinte istanze di sanatoria Prat. n°2079/sanatoria ANNO 1986 Prat. n°1351/ sanatoria ANNO 1995, Prat. n°248/sanatoria ANNO 2003; in data 4 luglio 2006 è stata rilasciata dal Comune di Carini Concessione Edilizia in sanatoria n.97/06.Sono presenti “difformità” inerenti modifiche apportate all’immobile rispetto al progetto approvato quali opere interne, aperture vani finestre nei prospetti e realizzazione della tettoia in copertura i cui costi sono stati detratti dal valore di stima.

EUROASTA LEADER IN ITALIA
Sede Palermo EUROASTA Lo Studio offre i seguenti servizi:

• Assistenza domanda di partecipazione Telematica o Cartacea
• Deposito offerta telematica, rilascio firma digitale e PEC)
• Approfondimento sulle tematiche giuridiche riguardanti le modalità di acquisto
• Esame della perizia e di ogni altro documento accessorio;
• Voucher Mutuo Fattibilità per l'erogazione del mutuo (anche 100%) tramite primari istituti bancari;
• Richiesta e prenotazione della visita dell'immobile tramite custode giudiziario delegato;
• Consulenza e assistenza anche in via telematica da remoto in tutta ITALIA;
• Partecipazione in asta in nome e nell'interesse del cliente. Assistenza totale Pre e Post Aggiudicazione.
• Consulenza MUTUO Gratuita in sede

EUROASTA LEADER IN ITALIA
Specialisti ASTE Immobiliari con Mutuo fino al 100%
Sede Palermo in Via Roma 471
Fronte Grand HOTEL Palme.
Cell. 351/ 700 7492
Mail./.info@euroasta.it
Sito./.www.euroasta.it


Trattasi di acquisto tramite vendita giudiziaria da parte del Tribunale competente con assistenza della EURO ASTA Immobiliari, studio di consulenza legale Creditizia leader in materia di esecuzioni immobiliari ed aste giudiziarie.
Si precisa che trattasi di vendita pubblica alla quale si può partecipare personalmente o tramite Avvocato.
Caratteristiche principali
Codice:
V000661
Città:
Carini
Categoria:
Villa
Locali:
5
Mq:
225
Piano:
Terra
Anno:
1970
Classe energetica:
G
Stato Immobile:
Buono
Grado:
Signorile
Posizione:
Collina
Panorama:
Vista Aperta
Lati Liberi:
4
Giardino:
Privato
Arredi:
Non Arredato
Tipo Soggiorno:
Soggiorno
Tipo Cucina:
Abitabile
Accessori
Ripostiglio
Mappa
Via Granada, 16 - Carini (PA)
Richiedi informazioni
Cookie preference
Contattaci su WhatsApp