Villa Corso dei Mille ASTA 28/11/2025

423.600 €
505,8 m²
Superficie
5
Bagni
in vendita
villa
Palermo
Descrizione
EUROASTA Specialisti ASTE e MUTUI fino al 100% del prezzo di aggiudicazione

Richiedi Gratuitamente:
Una consulenza Asta e il Voucher Approvazione Mutuo fino al 100%

Contattaci o invia un messaggio WhatsApp con scritto Info Asta al n. Cell. 351/7007492

Iscritti ALBO OAM

Assistenza Presentazione dell'offerta telematica o cartacea
(deposito offerta telematica, rilascio firma digitale e PEC)

Assistenza completa per tutto l'iter pre e post Aggiudicazione

Voucher Mutuo in asta richiedibile direttamente in sede fino al 100% del prezzo di Aggiudicazione

EUROASTA LEADER IN ITALIA
Specialisti ASTE Immobiliari con Mutuo fino al 100%
Sede Palermo in Via Roma 471
Fronte Grand HOTEL Palme.
Cell. 351/ 700 7492
Mail./info@euroasta.it
sito /--°www.euroasta.it

Contattaci per ricevere assistenza le informazioni, foto e la perizia e prenotare la visita

DATA ASTA - 28/11/2025

PREZZO OFFERTA BASE - 423.600,00€

RILANCIO MINIMO - 20.000,00€

TIPOLOGIA ASTA - Senza Incanto Sincrona Mista

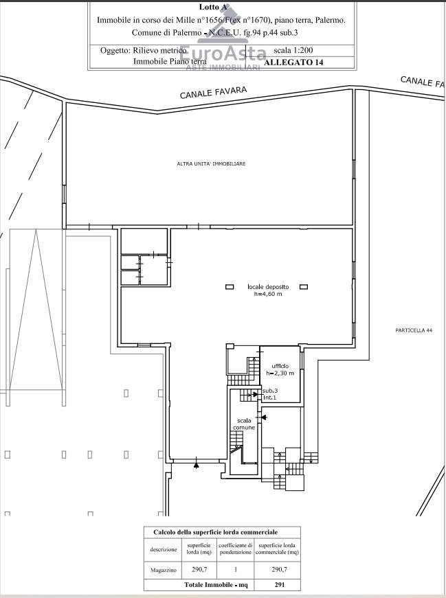
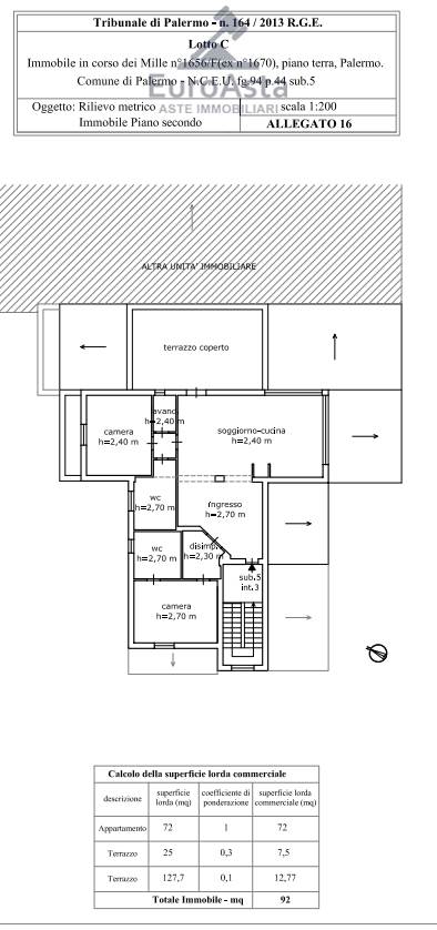
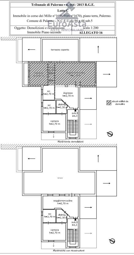
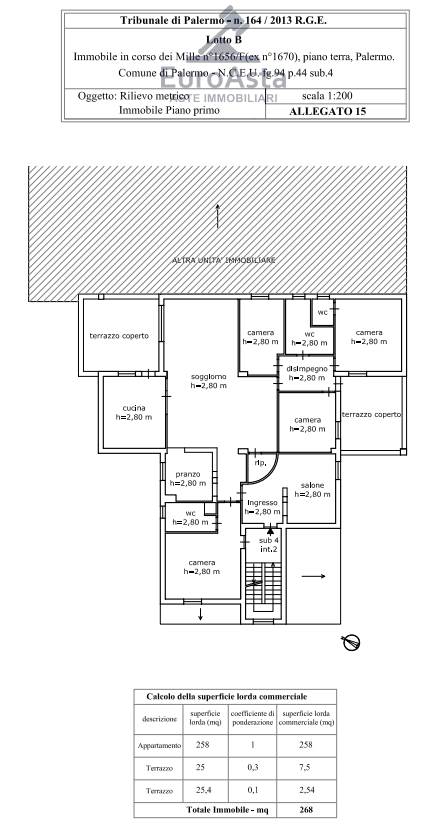
Fabbricato per civile abitazione sito in Palermo, Corso dei Mille n. 1656/F (già n. 1670), sì composto: magazzino al piano terra, interno 1, costituito da un grande vano deposito, con locali accessori e un locale ufficio, avente una superficie di circa 291 mq, con ingresso dall'area esterna e dalla scala interna comune, identificato in Catasto Fabbricati del Comune di Palermo al foglio 94, particella 44, subalterno 3, Categoria C/2, Classe 7, Consistenza 265 mq, Rendita € 396,90, corso dei Mille n. 1670 (oggi civico n.1656/F), piano T, interno 1, contraddistinto in CTU come LOTTO A; appartamento al piano primo, interno 2, con accesso dal vano scala comune a tutto il fabbricato, composto da nove vani e tre servizi igienici, avente una superficie di circa 268 mq., identificato in Catasto Fabbricati del Comune di Palermo al foglio 94, particella 44, subalterno 4, Categoria A/7, Classe 6, Consistenza 11 vani, Rendita € 1.136,90, corso dei Mille n. 1670 (oggi civico n.1656/F), piano 1, interno 2, contraddistinto in CTU come LOTTO B; appartamento al piano secondo, interno 3, con accesso dal vano scala comune a tutto il fabbricato, composto da cinque vani, due servizi igienici e lavanderia, avente una superficie di circa 140 mq., identificato in Catasto Fabbricati del Comune di Palermo al foglio 94, particella 44, subalterno 5, Categoria A/7, Classe 6, Consistenza 3,5 vani, Rendita € 361,52, corso dei Mille n. 1670 (oggi civico n.1656/F), piano 2, interno 3, contraddistinto in CTU come LOTTO C; visto l’art. 2912 c.c. e 569 c.p.c., sono compresi nel LOTTO 1 oggetto di vendita, i cespiti pertinenziali “comuni non censibili” quali la corte comune censita in C.F. di detto Comune al foglio 94,
particella 44, subalterno 1, e la scala interna comune censita in C.F. di detto Comune al
foglio 94 particella 44 subalterno 2;


EUROASTA LEADER IN ITALIA
Sede Palermo EUROASTA Lo Studio offre i seguenti servizi:

• Assistenza domanda di partecipazione Telematica o Cartacea
• Deposito offerta telematica, rilascio firma digitale e PEC)
• Approfondimento sulle tematiche giuridiche riguardanti le modalità di acquisto
• Esame della perizia e di ogni altro documento accessorio;
• Voucher Mutuo Fattibilità per l'erogazione del mutuo (anche 100%) tramite primari istituti bancari;
• Richiesta e prenotazione della visita dell'immobile tramite custode giudiziario delegato;
• Consulenza e assistenza anche in via telematica da remoto in tutta ITALIA;
• Partecipazione in asta in nome e nell'interesse del cliente. Assistenza totale Pre e Post Aggiudicazione.
• Consulenza MUTUO Gratuita in sede

EUROASTA LEADER IN ITALIA
Specialisti ASTE Immobiliari con Mutuo fino al 100%
Sede Palermo in Via Roma 471
Fronte Grand HOTEL Palme.
Cell. 351/ 700 7492
Mail./.info@euroasta.it
Sito./.www.euroasta.it


Trattasi di acquisto tramite vendita giudiziaria da parte del Tribunale competente con assistenza della EURO ASTA Immobiliari, studio di consulenza legale Creditizia leader in materia di esecuzioni immobiliari ed aste giudiziarie.
Si precisa che trattasi di vendita pubblica alla quale si può partecipare personalmente o tramite Avvocato.
Caratteristiche principali
Codice:
V000633
Città:
Palermo
Categoria:
Villa
Locali:
12
Bagni:
5
Mq:
505,8
Terrazzi:
4
mq Terrazzo:
202,7
Piano:
Terra
Classe energetica:
G
Stato Immobile:
Buono
Grado:
Signorile
Posizione:
Periferia
Panorama:
Vista Aperta
Lati Liberi:
4
Giardino:
Privato
Arredi:
Non Arredato
Tipo Soggiorno:
Soggiorno
Tipo Cucina:
Abitabile
Riscaldamento:
Autonomo
Accessori
Doppi Vetri
Lavanderia
Porta Blindata
Ripostiglio
Mappa
Corso dei mille, 1656/F - Palermo (PA)
Richiedi informazioni
Cookie preference
Contattaci su WhatsApp