Appartamento Via Contesse ASTA 12/11/2025

126.260 €
228,17 m²
Superficie
2
Bagni
in vendita
appartamento
Messina
Descrizione
EUROASTA Specialisti ASTE e MUTUI fino al 100% del prezzo di aggiudicazione
Contatto diretto - Chiamando o inviando un messaggio WhatsApp con scritto Info Asta al n. Cell. 351/ 7007492
Voucher Mutuo in asta richiedibile direttamente in sede fino al 100% del prezzo di Aggiudicazione
Assistenza domanda di partecipazione - Telematica o Cartacea (deposito offerta telematica, rilascio firma digitale e PEC)

Contattaci per ricevere assistenza le informazioni, foto e la perizia e prenotare la visita
(Consulenza Gratuita Aste e Mutuo in sede per i nostri Associati)

DATA ASTA - 12/11/2025

PREZZO OFFERTA BASE - 126.259,64€

RILANCIO MINIMO - 5.000,00€

TIPOLOGIA ASTA - Senza Incanto Asincrona Telematica

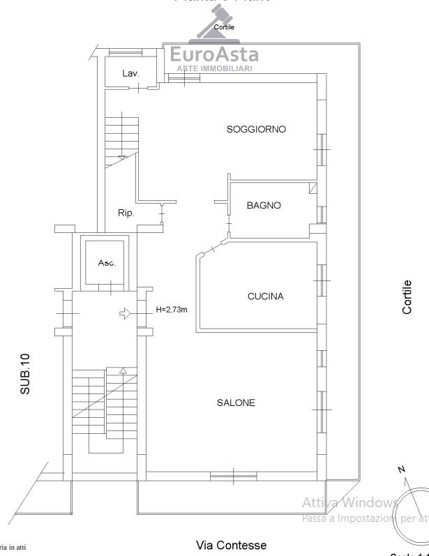
Piena proprietà per la quota di 1000/1000 di appartamento della sup. comm. di 228,17 mq. piano 5 e 6. L'appartamento è internamente così composto: al quinto piano: ingresso, salone, ampio soggiorno, cucina, bagno, lavanderia, ripostiglio oltre due balconi, al sesto piano (raggiungibile da scala interna): area ingresso, camera da letto matrimoniale, due camerette, bagno, cabina armadio oltre balcone.

EUROASTA LEADER IN ITALIA offre i seguenti servizi:

• Assistenza domanda di partecipazione Telematica o Cartacea
• Deposito offerta telematica, rilascio firma digitale e PEC)
• Approfondimento sulle tematiche giuridiche riguardanti le modalità di acquisto
• Esame della perizia e di ogni altro documento accessorio;
• Voucher Mutuo Fattibilità per l'erogazione del mutuo (anche 100%) tramite primari istituti bancari;
• Richiesta e prenotazione della visita dell'immobile tramite custode giudiziario delegato;
• Consulenza e assistenza anche in via telematica da remoto in tutta ITALIA;
• Partecipazione in asta in nome e nell'interesse del cliente. Assistenza totale Pre e Post Aggiudicazione.
• Consulenza MUTUO Gratuita in sede

EUROASTA LEADER IN ITALIA
Specialisti ASTE Immobiliari con mutuo fino al 100%
Oltre 120 sedi in tutta Italia
Cell. 351/ 700 7492
Mail. info@euroasta.it
Sito Web https://euroasta.it/it/


Caratteristiche principali
Codice:
V000507
Città:
Messina
Categoria:
Appartamento
Locali:
7
Bagni:
2
Mq:
228,17
Balconi:
4
Piano:
5
Anno:
2007
Classe energetica:
G
Stato Immobile:
Buono
Grado:
Medio
Posizione:
Centro
Panorama:
Vista Monti
Lati Liberi:
3
Giardino:
No
Arredi:
Non Arredato
Tipo Soggiorno:
Doppio
Tipo Cucina:
Abitabile
Riscaldamento:
Autonomo
Tipo Riscaldam.:
Caldaia
Tipo Impianto:
Termosifoni
Accessori
Aria Condizionata
Ascensore
Fibra Ottica
Porta Blindata
Ripostiglio
Video
Mappa
Via Contesse, 1 - Messina (ME)
Richiedi informazioni
Cookie preference
Contattaci su WhatsApp