Villa Via E. Morante ASTA 19/12/2025

143.438 €
179 m²
Superficie
2
Bagni
in vendita
villa
Palermo
Descrizione
EUROASTA Specialisti ASTE e MUTUI fino al 100% del prezzo di aggiudicazione

Richiedi Gratuitamente:
Una consulenza Asta e il Voucher Approvazione Mutuo fino al 100%

Contattaci o invia un messaggio WhatsApp con scritto Info Asta al n. Cell. 351/7007492

Iscritti ALBO OAM

Assistenza Presentazione dell'offerta telematica o cartacea
(deposito offerta telematica, rilascio firma digitale e PEC)

Assistenza completa per tutto l'iter pre e post Aggiudicazione

Voucher Mutuo in asta richiedibile direttamente in sede fino al 100% del prezzo di Aggiudicazione

EUROASTA LEADER IN ITALIA
Specialisti ASTE Immobiliari con Mutuo fino al 100%
Sede Palermo in Via Roma 471
Fronte Grand HOTEL Palme.
Cell. 351/ 700 7492 - Tel. 091/ 9294493
Mail./info@euroasta.it
sito /--°www.euroasta.it

Contattaci per ricevere assistenza le informazioni, foto e la perizia e prenotare la visita

DATA ASTA - 19/12/2025

PREZZO OFFERTA BASE - 143.437,50€

RILANCIO MINIMO - 3.000,00€

TIPOLOGIA ASTA - Senza Incanto Sincrona Mista

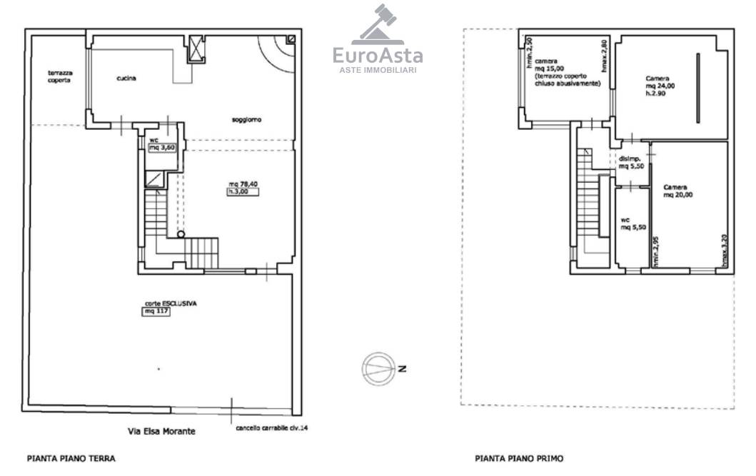
Villino unifamiliare sito in Palermo, via Elsa Morante n.14, a due elevazioni f.t. (p.terra e piano primo) con corte scoperta esclusiva estesa mq 117, censito al Catasto Fabbricati del Comune di Palermo in via Elsa Morante n. 16, foglio 18 particella 3247 sub 4 (ex sub 2 e 3) Cat.A/7, classe 6, vani catastali 7, superficie catastale 179 (escluse aree scoperte 173 mq), Rendita € 542,28.

EUROASTA LEADER IN ITALIA
Sede Palermo EUROASTA Lo Studio offre i seguenti servizi:

• Assistenza domanda di partecipazione Telematica o Cartacea
• Deposito offerta telematica, rilascio firma digitale e PEC)
• Approfondimento sulle tematiche giuridiche riguardanti le modalità di acquisto
• Esame della perizia e di ogni altro documento accessorio;
• Voucher Mutuo Fattibilità per l'erogazione del mutuo (anche 100%) tramite primari istituti bancari;
• Richiesta e prenotazione della visita dell'immobile tramite custode giudiziario delegato;
• Consulenza e assistenza anche in via telematica da remoto in tutta ITALIA;
• Partecipazione in asta in nome e nell'interesse del cliente. Assistenza totale Pre e Post Aggiudicazione.
• Consulenza MUTUO Gratuita in sede

EUROASTA LEADER IN ITALIA
Specialisti ASTE Immobiliari con Mutuo fino al 100%
Sede Palermo in Via Roma 471
Fronte Grand HOTEL Palme.
Cell. 351/ 700 7492 - Tel. 091/ 9294493
Mail./info@euroasta.it
Sito /www.euroasta.it


Trattasi di acquisto tramite vendita giudiziaria da parte del Tribunale competente con assistenza della EURO ASTA Immobiliari, studio di consulenza legale Creditizia leader in materia di esecuzioni immobiliari ed aste giudiziarie.
Si precisa che trattasi di vendita pubblica alla quale si può partecipare personalmente o tramite Avvocato.
Caratteristiche principali
Codice:
V000463
Città:
Palermo
Categoria:
Villa
Locali:
7
Bagni:
2
Mq:
179
Mq Giardino:
117
mq Terrazzo:
15
Piano:
Terra
Anno:
1970
Classe energetica:
G
Stato Immobile:
Buono
Grado:
Signorile
Posizione:
Periferia
Panorama:
Vista Aperta
Lati Liberi:
4
Giardino:
Privato
Arredi:
Non Arredato
Tipo Soggiorno:
Doppio
Tipo Cucina:
Abitabile
Riscaldamento:
Autonomo
Tipo Riscaldam.:
Caldaia
Tipo Impianto:
Radiatori
Accessori
Camino
Canna fumaria
Cancello Elettrico
Doppi Vetri
Fibra Ottica
Veranda
Video
Mappa
Via Elsa Morante, 14 - Palermo (PA)
Richiedi informazioni
Cookie preference
Contattaci su WhatsApp