Villa Via Dedalo Mondello ASTA 30/10/2025

233.636 €
319,33 m²
Superficie
3
Camere
2
Bagni
in vendita
villa
Palermo
Descrizione
EUROASTA Specialisti ASTE e MUTUI fino al 100% del prezzo di aggiudicazione

Richiedi Gratuitamente:
Una consulenza Asta e il Voucher Approvazione Mutuo fino al 100%

Contattaci o invia un messaggio WhatsApp con scritto Info Asta al n. Cell. 351/7007492

Iscritti ALBO OAM

Assistenza Presentazione dell'offerta telematica o cartacea
(deposito offerta telematica, rilascio firma digitale e PEC)

Assistenza completa per tutto l'iter pre e post Aggiudicazione

Voucher Mutuo in asta richiedibile direttamente in sede fino al 100% del prezzo di Aggiudicazione

EUROASTA LEADER IN ITALIA
Specialisti ASTE Immobiliari con Mutuo fino al 100%
Sede Palermo in Via Roma 471
Fronte Grand HOTEL Palme.
Cell. 351/ 700 7492 - Tel. 091/ 9294493
Mail./info@euroasta.it
sito /--°www.euroasta.it

Contattaci per ricevere assistenza le informazioni, foto e la perizia e prenotare la visita

DATA ASTA - 30/10/2025

PREZZO OFFERTA BASE - 223.635,93€

RILANCIO MINIMO - 10.000,00€

TIPOLOGIA ASTA Sincrona Mista Senza Incanto

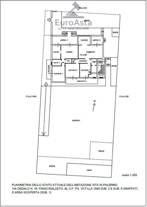
Piena ed intera proprietà 1/1 di fabbricato con terreno pertinenziale sito in Palermo, località Mondello, via Dedalo n. 16, realizzato in assenza di titoli autorizzativi e allo stato attuale risulta interamente abusivo, costituito da Abitazione in Villino (cat. A/7), Lastrico Solare (cat. L) Locale di Deposito (cat. C/2)

EUROASTA LEADER IN ITALIA
Sede Palermo EUROASTA Lo Studio offre i seguenti servizi:

• Assistenza domanda di partecipazione Telematica o Cartacea
• Deposito offerta telematica, rilascio firma digitale e PEC)
• Approfondimento sulle tematiche giuridiche riguardanti le modalità di acquisto
• Esame della perizia e di ogni altro documento accessorio;
• Voucher Mutuo Fattibilità per l'erogazione del mutuo (anche 100%) tramite primari istituti bancari;
• Richiesta e prenotazione della visita dell'immobile tramite custode giudiziario delegato;
• Consulenza e assistenza anche in via telematica da remoto in tutta ITALIA;
• Partecipazione in asta in nome e nell'interesse del cliente. Assistenza totale Pre e Post Aggiudicazione.
• Consulenza MUTUO Gratuita in sede

EUROASTA LEADER IN ITALIA
Specialisti ASTE Immobiliari con Mutuo fino al 100%
Sede Palermo in Via Roma 471
Fronte Grand HOTEL Palme.
Cell. 351/ 700 7492 - Tel. 091/ 9294493
Mail./info@euroasta.it
Sito /www.euroasta.it


Trattasi di acquisto tramite vendita giudiziaria da parte del Tribunale competente con assistenza della EURO ASTA Immobiliari, studio di consulenza legale Creditizia leader in materia di esecuzioni immobiliari ed aste giudiziarie.
Si precisa che trattasi di vendita pubblica alla quale si può partecipare personalmente o tramite Avvocato.
Caratteristiche principali
Codice:
V000396
Città:
Palermo
Categoria:
Villa
Locali:
6
Camere:
3
Bagni:
2
Mq:
319,33
Mq Giardino:
737,07
Balconi:
2
Mq Balcone:
20
Piano:
Terra
Anno:
1970
Classe energetica:
G
Stato Immobile:
Buono
Grado:
Signorile
Posizione:
Mare
Panorama:
Vista Giardino
Lati Liberi:
4
Giardino:
Privato
Arredi:
Non Arredato
Tipo Soggiorno:
Soggiorno
Accessori
Cancello Elettrico
Porta Blindata
Mappa
Via Dedalo, 16 - Palermo (PA)
Richiedi informazioni
Cookie preference
Contattaci su WhatsApp