Appartamento Via Giuseppe Silvestri asta 05/12/2025

94.000 €
153,2 m²
Superficie
in vendita
appartamento
Palermo
Descrizione
EUROASTA Specialisti ASTE e MUTUI fino al 100% del prezzo di aggiudicazione

Prenota la consulenza Gratuita Aste e per la prefattibilità Mutuo Chiamando o inviando un messaggio WhatsApp con scritto Info Asta al n.Cell. 351/7007492

Voucher Mutuo in asta richiedibile direttamente in sede fino al 100% del prezzo di Aggiudicazione

Assistenza domanda di partecipazione - Telematica o Cartacea (deposito offerta telematica, rilascio firma digitale e PEC)

EUROASTA LEADER IN ITALIA
Specialisti ASTE Immobiliari con mutuo fino al 100%
Sede Palermo in Via Roma 471
Fronte Grand HOTEL Palme.
Cell. 351/ 700 7492 - Tel. 091/ 9294493
Mail. info@euroasta.it


Contattaci per ricevere assistenza le informazioni, foto e la perizia e prenotare la visita
(Consulenza Gratuita Aste e Mutuo in sede per i nostri Associati)

DATA ASTA - 05/12/2025

PREZZO OFFERTA BASE - 94.000,00€

RILANCIO MINIMO 5.000,00€

TIPOLOGIA ASTA - Senza Incanto Sincrona Mista

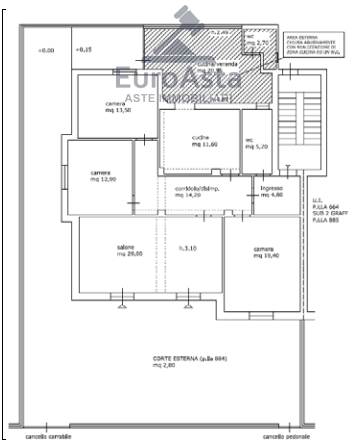
Piena ed intera proprietà di unità immobiliare, ad uso residenziale, sita a Palermo, in Via Giuseppe Silvestri n.5, al piano terra, composta da ingresso, disimpegno/corridoio, salone doppio, tre camere, servizio igienico con vasca, cucina con annesso vano abusivo in cui è stata realizzata un’altra zona attrezzata cucina ed un piccolo servizio igienico con doccia, oltre area esterna di pertinenza estesa mq 152 (compreso il vano abusivo da demolire); censita al Catasto Fabbricati del Comune di Palermo al foglio 7 particella 664 sub 2 graffata alla p.lla 884, Zona censuaria 5, Cat. A/3, classe 6, Cons. 6 vani, Sup. catastale 153 mq, escluse aree scoperte mq 136, Rendita € 226,21.

EUROASTA LEADER IN ITALIA
Sede Palermo EUROASTA Lo Studio offre i seguenti servizi:

• Assistenza domanda di partecipazione Telematica o Cartacea
• Deposito offerta telematica, rilascio firma digitale e PEC)
• Approfondimento sulle tematiche giuridiche riguardanti le modalità di acquisto
• Esame della perizia e di ogni altro documento accessorio;
• Voucher Mutuo Fattibilità per l'erogazione del mutuo (anche 100%) tramite primari istituti bancari;
• Richiesta e prenotazione della visita dell'immobile tramite custode giudiziario delegato;
• Consulenza e assistenza anche in via telematica da remoto in tutta ITALIA;
• Partecipazione in asta in nome e nell'interesse del cliente. Assistenza totale Pre e Post Aggiudicazione.
• Consulenza MUTUO Gratuita in sede

EUROASTA LEADER IN ITALIA
Specialisti ASTE Immobiliari
Sede Palermo in Via Roma 471
Fronte Grand HOTEL Palme.
Cell. 351/ 700 7492
Tel. 091/ 9294493
Mail. info@euroasta.it


Trattasi di acquisto tramite vendita giudiziaria da parte del Tribunale competente con assistenza della EURO ASTA Immobiliari, studio di consulenza legale Creditizia leader in materia di esecuzioni immobiliari ed aste giudiziarie.
Si precisa che trattasi di vendita pubblica alla quale si può partecipare personalmente o tramite Avvocato.
Caratteristiche principali
Codice:
V000302
Città:
Palermo
Categoria:
Appartamento
Locali:
6
Mq:
153,2
Mq Giardino:
152
Piano:
Terra
Classe energetica:
F
Stato Immobile:
Buono
Mappa
Via Giuseppe Silvestri, 5 - Palermo (PA)
Richiedi informazioni
Cookie preference
Contattaci su WhatsApp